Duplex Villa d’Alésia Paris 14e

Surface : 90m²

Livraison : juin 2004

 

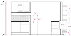
Comment donner la sensation d’espace dans ce duplex étroit et sans rangement ? Les contraintes : il fallait encastrer une télévision très profonde sous l’escalier, qui a donné les dimensions de l’étagère sur mesure plaquée en chêne. Côté cuisine les rangements sont positionnés sur 2 niveaux, ils occupent toute la hauteur. Les portes ont été recoupées pour entrer sous l’escalier. Une découpe dans la cloison à l’horizontale isole la cuisine sans la séparer totalement de la petite salle à manger. Des détails de peinture donnent l’illusion de profondeur.

 

 

 

crédit photos Lara Ayvazoglu / Véronique Laure

 

PLAN ET COUPES

CUISINE / SÉJOUR